Gert Reypens team

Orihuela Costa

Apartment · New Build

€469.000

Orihuela Costa

Apartment · New Build

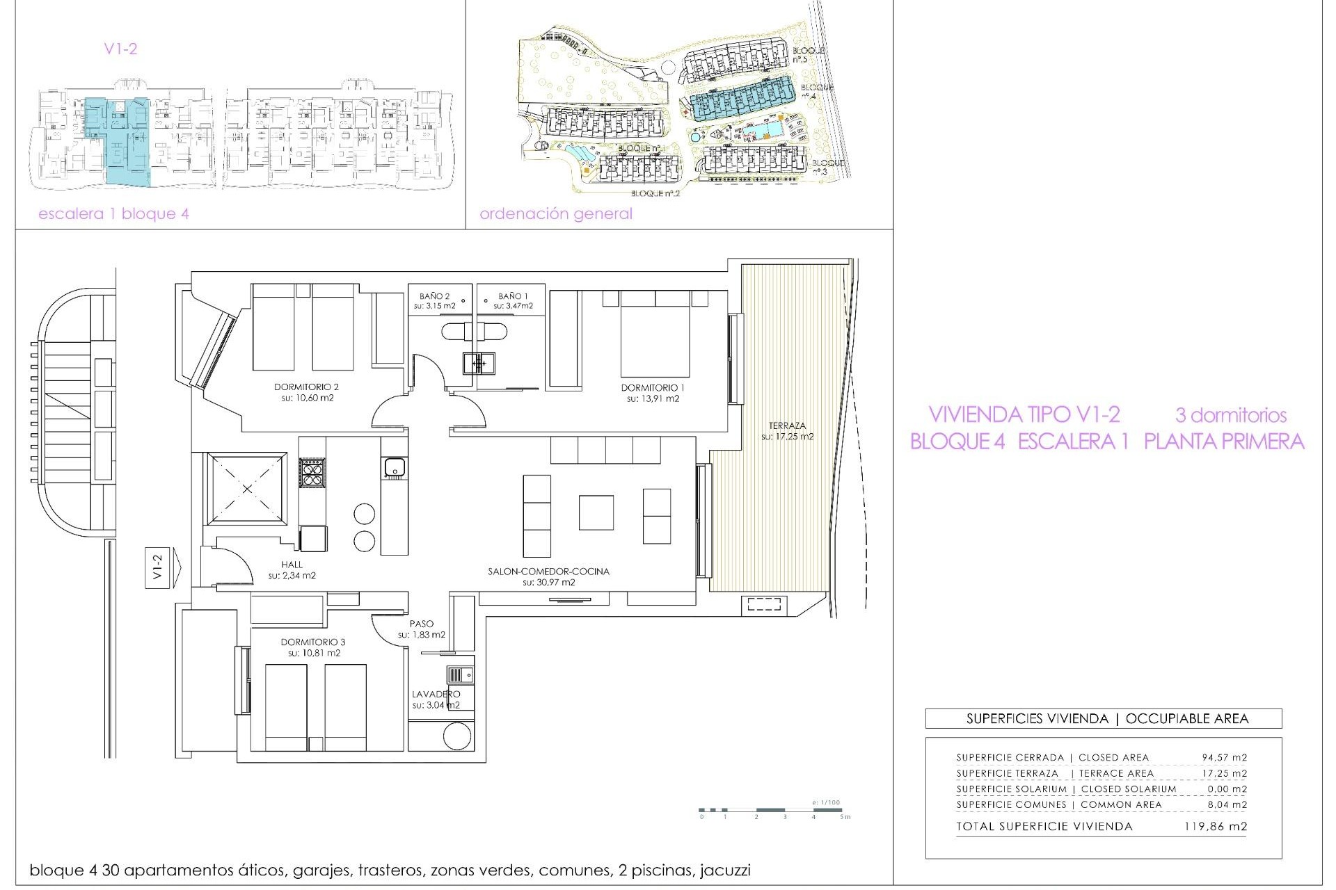
NEW BUILD RESIDENTIAL AT PLAYA FLAMENCA!!!

  • Built 94 m2
  • Bedrooms 3
  • Bathrooms 2
Check icon Year of construction: 2025
Check icon Delivery date: 2028-06-01
Check icon Bedrooms: 3
Check icon Bathrooms: 2
Check icon Built: 94m2
Check icon Balcony: 17 m2
Check icon Type: Apartment
Check icon Orientation: South
Check icon Distance to beach: 500 Mts.

Description

Location

Find my dreamhouse at the Costa Blanca

Read more
Dreamhouse banner image
Gert Reypens team

Make an enquiry

Responsable del tratamiento: Gert Simon J Reypens, Finalidad del tratamiento: Gestión y control de los servicios ofrecidos a través de la página Web de Servicios inmobiliarios, Envío de información a traves de newsletter y otros, Legitimación: Por consentimiento, Destinatarios: No se cederan los datos, salvo para elaborar contabilidad, Derechos de las personas interesadas: Acceder, rectificar y suprimir los datos, solicitar la portabilidad de los mismos, oponerse altratamiento y solicitar la limitación de éste, Procedencia de los datos: El Propio interesado, Información Adicional: Puede consultarse la información adicional y detallada sobre protección de datos Aquí.

Receive monthly news, tips and updates about emigrating to Spain and the newest properties in our portfolio.

Found properties
WhatsApp