Gert Reypens team

Mijas

Ático · Nueva construcción

€638.000

Mijas

Ático · Nueva construcción

APARTAMENTOS CON VISTAS AL MAR O CAMPO DE GOLF EN LA COSTA DEL SOL

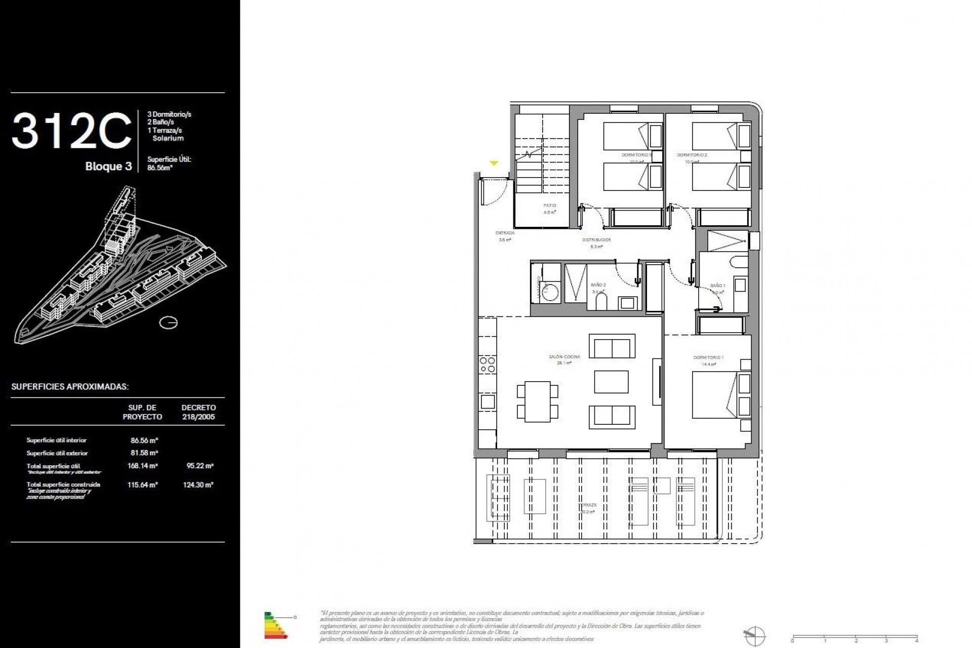
  • Construidos 116 m2
  • Habitaciones 3
  • Baños 2
Check icon Año de construcción: 2025
Check icon Fecha de entrega: 2026-03-12
Check icon Habitaciones: 3
Check icon Baños: 2
Check icon Construidos: 116m2
Check icon Balcón: 81 m2
Check icon Tipo: Ático
Check icon Distancia a la playa: 2000 Mts.

Descripción

Localización

Encuentra mi casa de ensueño en la Costa Blanca

Leer más
Dreamhouse banner image
Gert Reypens team

Realizar una consulta

Responsable del tratamiento: Gert Simon J Reypens, Finalidad del tratamiento: Gestión y control de los servicios ofrecidos a través de la página Web de Servicios inmobiliarios, Envío de información a traves de newsletter y otros, Legitimación: Por consentimiento, Destinatarios: No se cederan los datos, salvo para elaborar contabilidad, Derechos de las personas interesadas: Acceder, rectificar y suprimir los datos, solicitar la portabilidad de los mismos, oponerse altratamiento y solicitar la limitación de éste, Procedencia de los datos: El Propio interesado, Información Adicional: Puede consultarse la información adicional y detallada sobre protección de datos Aquí.

Reciba noticias mensuales, consejos y actualizaciones sobre emigrar a España y las propiedades más nuevas en nuestra cartera.

Se han encontrado propiedades
WhatsApp