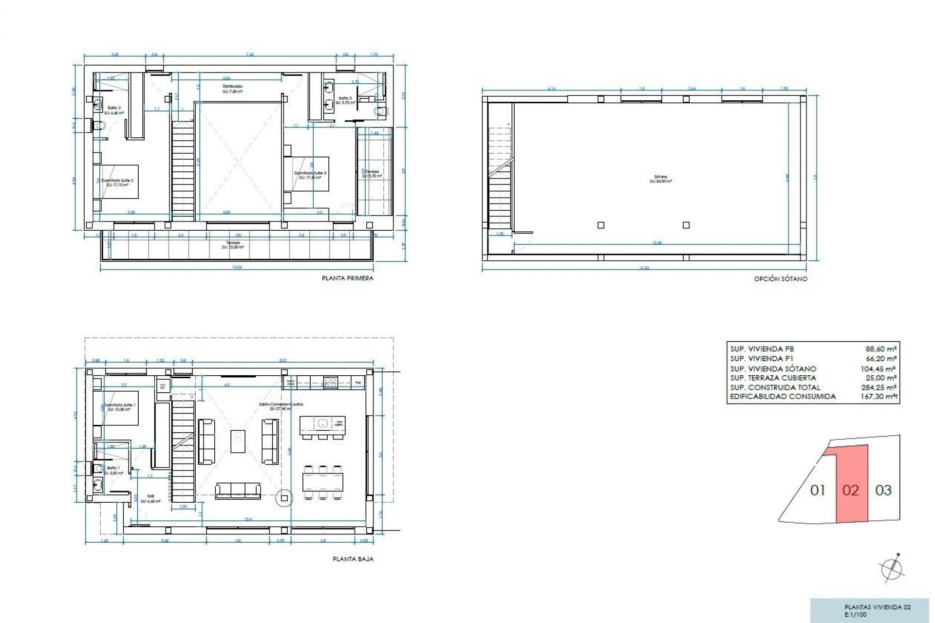
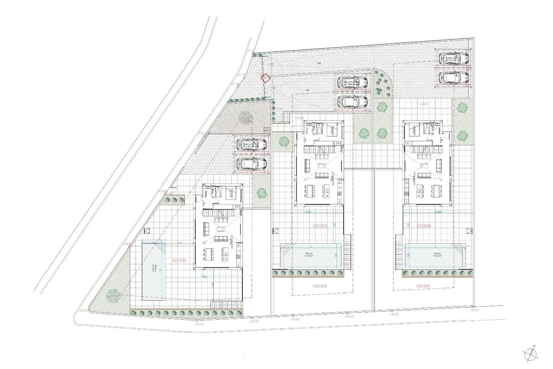
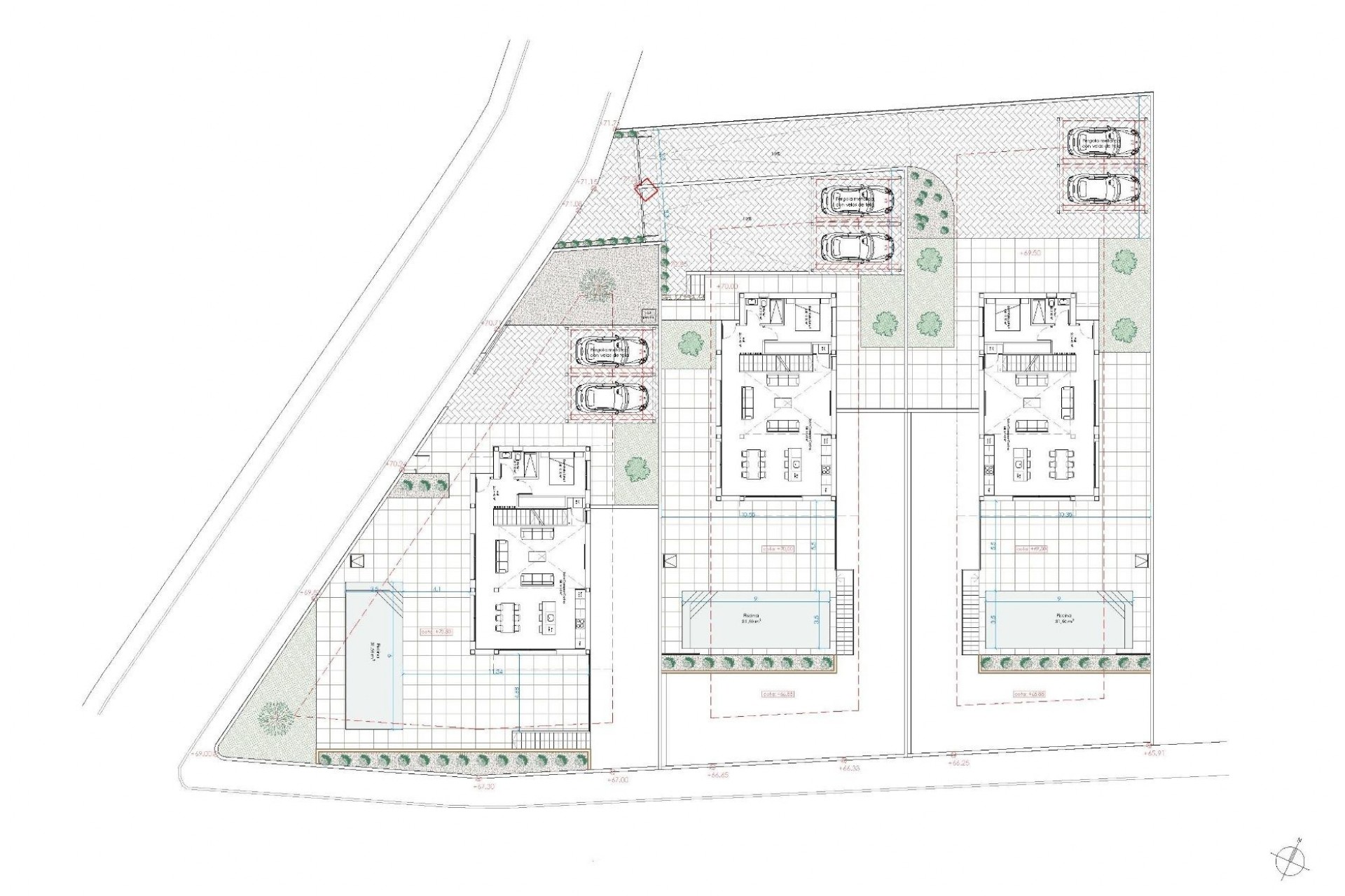
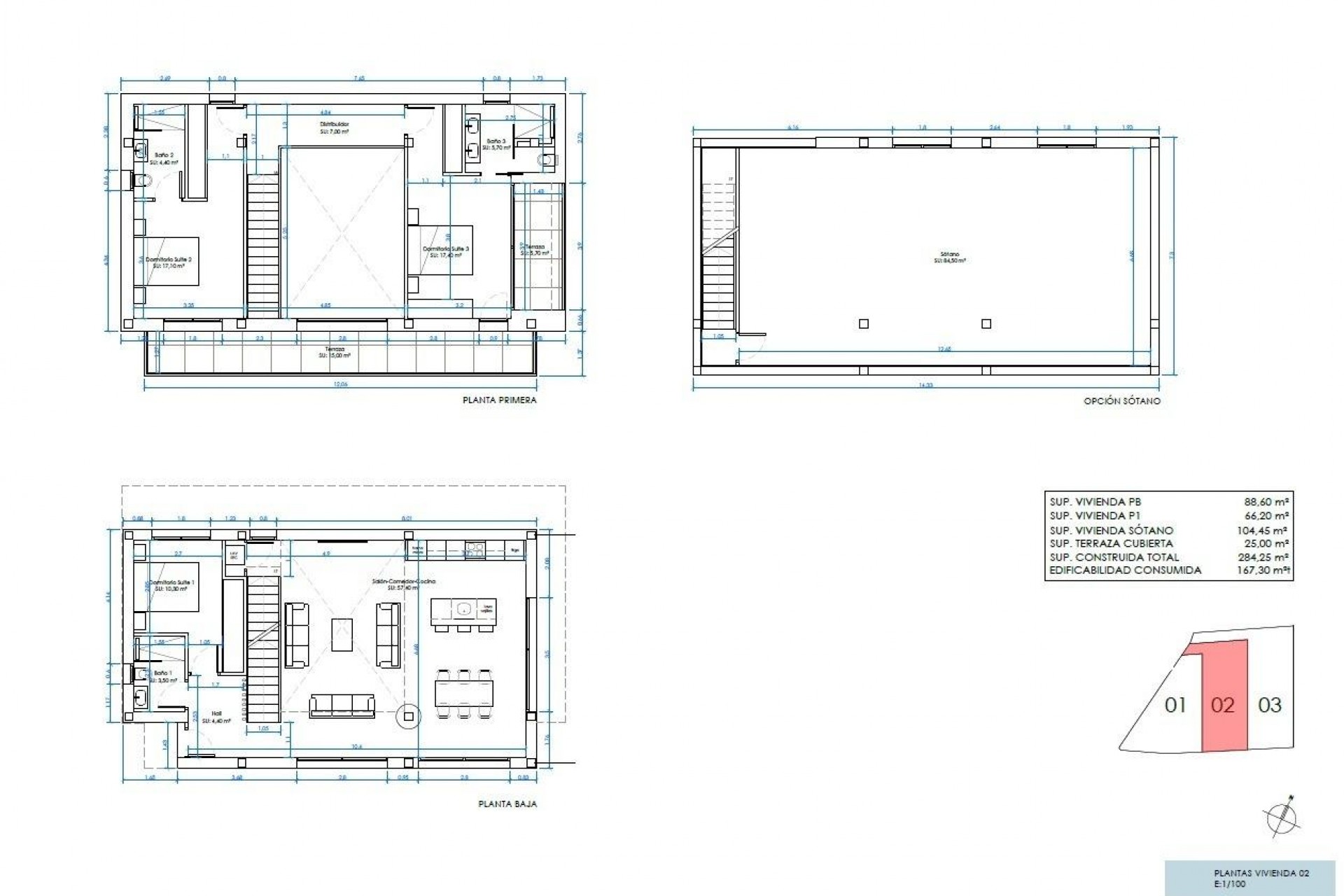
Villa de nueva construcción en Rojales: diseño moderno y ubicación privilegiada Descubra esta impresionante villa de nueva construcción en Ciudad Quesada, Rojales, diseñada con un equilibrio perfecto entre estilo, comodidad y funcionalidad. Rodeada de naturaleza y cerca de todos los servicios esenciales, esta vivienda es una opción ideal para quienes buscan una vida de calidad en el corazón de la Costa Blanca. Amplia distribución con acabados de alta gama Esta villa ha sido cuidadosamente diseñada para maximizar la luz natural y los espacios abiertos. Incluye: Un amplio sótano con excelente ventilación y luz natural, ideal para múltiples usos. Planta baja con salón de doble altura, cocina abierta con isla, un dormitorio y un baño. Planta superior con dos dormitorios en suite, cada uno con acceso a terrazas privadas. La villa también ofrece una piscina privada de 9x3,5 m, zonas ajardinadas y múltiples terrazas para relajarse al aire libre. Acabados de calidad y confort moderno Construida con materiales de primera calidad, esta propiedad está equipada con: Baños completamente amueblados con espejos. Aire acondicionado por conductos. Calefacción por suelo radiante en los baños. Sistema de agua caliente aerotérmico. Aparcamiento para varios vehículos. Ubicación privilegiada en Rojales Situada en la encantadora localidad de Rojales, esta villa goza de proximidad a servicios esenciales como supermercados, farmacias, bancos, restaurantes y parques naturales. A solo 10 minutos de La Marquesa Golf, uno de los campos más prestigiosos de la Costa Blanca, los residentes pueden disfrutar de una experiencia de golf de primer nivel rodeados de tradición y calidad. Excelente conectividad y atracciones cercanas Rojales está estratégicamente situado, ofreciendo excelentes conexiones por carretera: La Marquesa Golf: 3 km Playas de Guardamar del Segura: 8 km Torrevieja: 12 km Aeropuerto de Alicante: 40 km Aeropuerto de Murcia: 55 km Además, las carreteras N-332 y AP-7 garantizan un rápido acceso a las localidades cercanas, centros comerciales, puertos deportivos y atracciones culturales. Haga de Rojales su nuevo hogar Tanto si busca una residencia permanente, un refugio para las vacaciones o una inversión segura, esta villa de nueva construcción en Ciudad Quesada le ofrece todo lo que necesita para disfrutar del estilo de vida mediterráneo. Póngase en contacto con nosotros hoy mismo para obtener más detalles y concertar una visita privada.